
6 Carlingford Way Greenville, SC 29615
5 Beds
5 Baths
4,772 SqFt
UPDATED:
Key Details
Property Type Single Family Home
Sub Type Single Family Residence
Listing Status Active
Purchase Type For Sale
Approx. Sqft 4600-4799
Square Footage 4,772 sqft
Price per Sqft $259
Subdivision Aster
MLS Listing ID 1569500
Style Craftsman
Bedrooms 5
Full Baths 4
Half Baths 1
Construction Status To Be Built
HOA Fees $175/mo
HOA Y/N yes
Lot Size 5,401 Sqft
Lot Dimensions 50 x 108
Property Sub-Type Single Family Residence
Property Description
Location
State SC
County Greenville
Area 020
Rooms
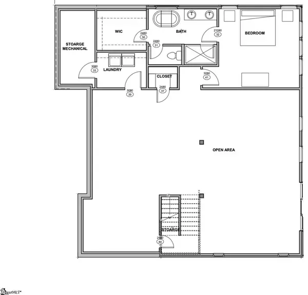
Basement Finished, Full
Master Description Double Sink, Full Bath, Primary on Main Lvl, Shower-Separate, Tub-Separate, Walk-in Closet
Interior
Interior Features 2 Story Foyer, High Ceilings, Ceiling Fan(s), Vaulted Ceiling(s), Ceiling Smooth, Granite Counters, Walk-In Closet(s), In-Law Floorplan, Split Floor Plan, Countertops – Quartz, Pantry, Radon System
Heating Natural Gas
Cooling Central Air, Electric
Flooring Carpet, Ceramic Tile, Luxury Vinyl
Fireplaces Number 1
Fireplaces Type Gas Log
Fireplace Yes
Appliance Gas Cooktop, Dishwasher, Disposal, Oven, Microwave, Gas Water Heater, Tankless Water Heater
Laundry 1st Floor, In Basement, Walk-in
Exterior
Parking Features Attached, Concrete, Garage Door Opener, Courtyard Entry, Key Pad Entry, Driveway
Garage Spaces 2.0
Community Features Lawn Maintenance
Roof Type Architectural
Garage Yes
Building
Building Age To Be Built
Lot Description 1/2 Acre or Less, Sprklr In Grnd-Full Yard
Story 2
Foundation Slab, Basement
Builder Name Pinestone Builders
Sewer Public Sewer
Water Public
Architectural Style Craftsman
New Construction Yes
Construction Status To Be Built
Schools
Elementary Schools East North St
Middle Schools Greenville
High Schools Wade Hampton
Others
HOA Fee Include Maintenance Grounds,Street Lights,By-Laws,Restrictive Covenants,Yard Irrigation
Get More Information






